Cantilever Sliding Gate
The Cantilever Sliding Gate is an upscale, space-saving gate mechanism that works for residential and commercial entrances through a satisfying combination of style and function. Consequently, this gate type functions independently from ground tracks since its counterbalance method suspends the gate above driveways. As a result, it works perfectly for sloping ground or locations that cannot support track systems.
Key Features:
- Save space
The cantilever support structure powers cantilever sliding gates because their gate body requires no ground tracks for sliding movement. Swing gates with cantilever sliding functionality occupy less space because they move parallel to the fence or building and do not need operational spaces in front or behind to rotate. Therefore, these gates are exceptional for institutions with appearance or parking constraints. - High applicability
Don't need tracks enables this product to operate effectively on sites where moisture or dirt, or cold weather conditions exist. The system operates effectively on terrain types that include steep slopes in addition to sites with uneven and obstructed areas. - High safety
Security features of the gate include anti-collision devices alongside sensors and anti-pinch functions, which ensure improved safety performance. The infrared anti-climbing function stops unauthorized persons from accessing the area and protects against theft. - Convenient operation
Security systems and smart home devices can easily integrate this product for remote monitoring purposes. - Easy maintenance
Since it does not need a ground track system, the gate does not need regular cleaning operations. Periodic inspections of the cantilever system, together with the rollers, help maintain the continuing operation of the gate body. - Beautiful and diverse design
The design looks both basic and serene, which permits use in industrial locations together with commercial establishments and residential buildings. Users may choose their preferred color selection and style range depending on their needs alongside functional and aesthetic requirements.

It is composed of a correction wheel, a tail lever, a limit sensing system, and an inner guide wheel to ensure that the gate moves in a straight line without shaking.
1. Correction wheel
Prevent gate shaking and wear.
2. Tail lever
Hexagonal aluminum alloy profiles, upper and lower fixings, and 304 large M20 screws are used to ensure that the gate body does not sag during operation.
3. Inner guide wheel
It is composed of nylon wheels, precision-cast sheet metal, and bearings, which can reduce the friction coefficient of the gate body, improve the stability and life of the gate body, and reduce noise.
4. Limit sensing system
The induction gate body operates in place to reduce excessive motor operation.
The safety power supply transmission system of the suspended gate is composed of a customized leakage switch, customized wires, and nylon wheels, ensuring a more stable power supply, wear resistance, no leakage, and preventing safety accidents.
1. Caimen customized 3-core wire
99.99% oxygen-free pure copper wire.
2. Nylon protection wheel
Reduce contact between motor components and gate row, non-conductive.


The safety power supply transmission system of the suspended gate is composed of a customized leakage switch, customized wires, and nylon wheels, ensuring a more stable power supply, wear resistance, no leakage, and preventing safety accidents.
1. Caimen customized 3-core wire
99.99% oxygen-free pure copper wire.
2. Nylon protection wheel
Reduce contact between motor components and gate row, non-conductive.

1. Infrared anti-climbing
10 seconds after the gate is closed, if a person or object passes between the infrared transmitting and receiving sensors at the top of the gate, the alarm device will sound an alarm.
2. Anti-collision function
When the gate is closing, if a person or object passes between the gate's infrared transmitting and receiving sensors, the alarm device will sound an alarm, and the gate will automatically stop and return.
3. Emergency stop device
In the running state, in case of emergency, the power supply can be quickly cut off through the emergency stop switch to achieve emergency stop and ensure safety.
4. Anti-pinch function
When the gate is in operation, if the airbag inside the gate is hit by a person or an object, the gate will stop operating immediately.
1. Safety airbag
In the running state, when the airbag is hit by a person or an object and the anti-collision pressure wave is sensed, the gate body can automatically return to run for about 1 meter and then stop running.
2. Digital integrated control system
The 10th-generation digital integrated control system is 5 times faster than the previous generation and is more compatible with various smart devices, making it a necessary device for smart AI interaction.


1. Safety airbag
In the running state, when the airbag is hit by a person or an object and the anti-collision pressure wave is sensed, the gate body can automatically return to run for about 1 meter and then stop running.
2. Digital integrated control system
The 10th generation digital integrated control system is 5 times faster than the previous generation and is more compatible with various smart devices, making it a necessary device for smart AI interaction.

Over one million investment, 3 years of continuous design improvement
Aluminum alloy precision die-casting housing, good heat dissipation performance; Compact structure and stable performance; large starting torque, able to adapt to frequent forward and reverse rotation; embedded thermal protection device to extend the service life of the gate opener; good self-locking performance, can manually release the self-locking to realize manual opening and closing of the gate; normal operation at low temperature of -35℃.
7 Advantages
1. Brushless 2. Soft brake
3. Deceleration function 4. High temperature protection
5. Motor self-locking 6. Manual clutch
7. Overload protection
Products Can Be Connected to the Intelligent Interactive System







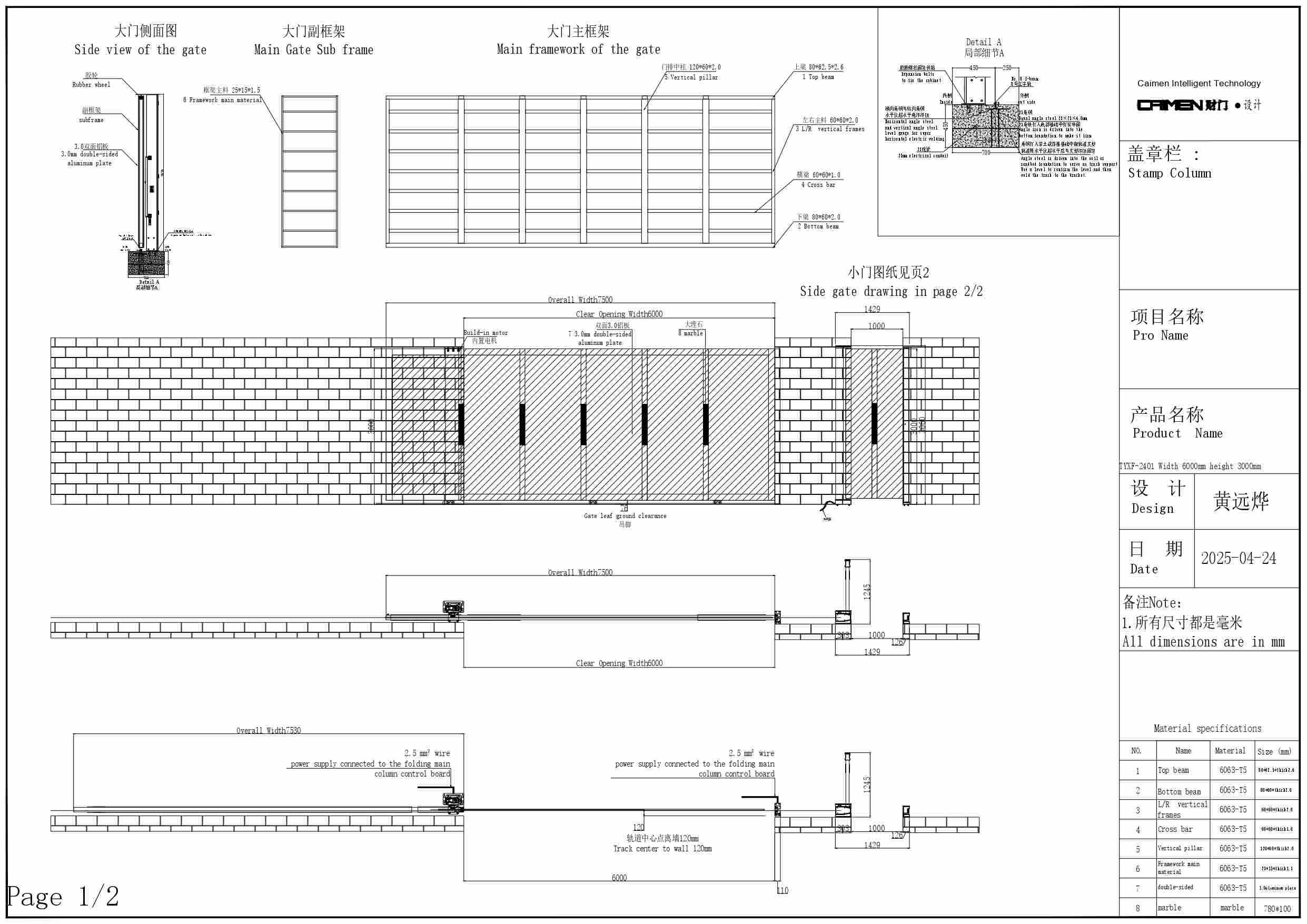
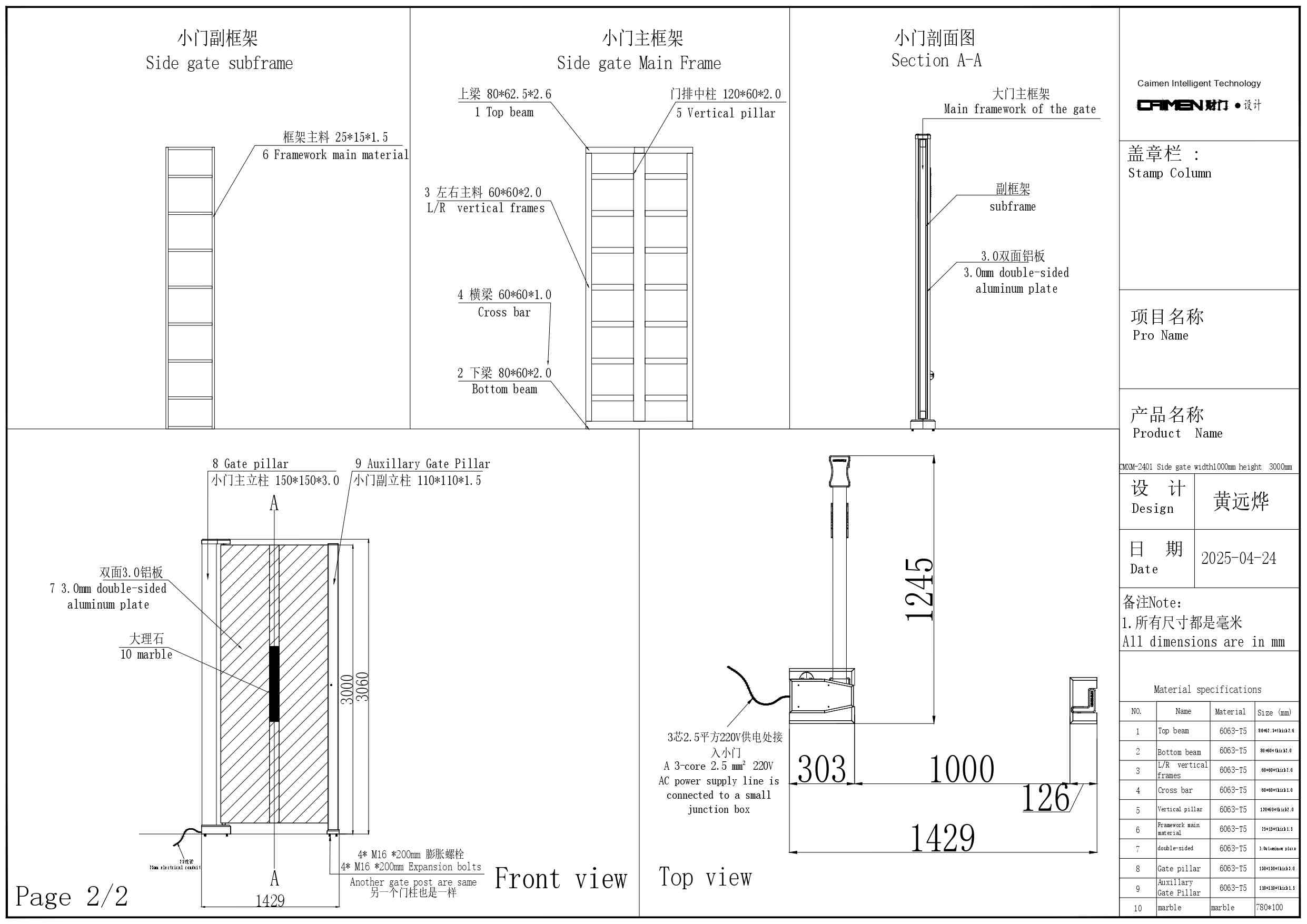
All dimensions are in mm. The schematic diagram takes one of the models as an example and is for reference only.
| Name | Top Beam | Bottom Beam | Gate Pull Rod | Auxillary Gate Frame | Main Gate Pillar | Vertical Bar | Gantry |
| Material | 6005-T6 | 6005-T6 | 6063-T6 | 6063-T6 | 6063-T6 | 6063-T6 | 6063-T6 |
| Size mm | 113*93* Thickness 2-6 | 302*213* Thickness 7.0 | 21 Hexagon | 80*40* Thickness 2.0 | 80*80* Thickness 3.0 | 47*37*Thickness 1.3 | 150*100* Thickness 3.0 |
| Insulation Grade | B |
| Product Grade | A |
| Surface Treatment | Fluorocarbon Powder Coating |
| Product Color | CM-01 Gray (Customizable) |
| Function Configuration | |||
| Function | Standard/Optional | Function | Standard/Optional |
| Motor Thermal Protection | Standard | Soft Drive Device | Standard |
| Manual Clutch | Standard | Emergency Stop Device | Standard |
| Scrolling Display | Optional | Radio Remote Control | Standard |
| Anti-collision Airbag | Standard | Gantry | Standard |
| Infrared Alarm | Standard | Anti-pinch | Standard |
| Anti-climbing Teeth | Optional | Voice | Standard |


